約3億円の高級移動ホテル!? 全長13m超のキャンピングカー「パラッツォスーペリア」はクルーザー並の装備満載!
世の中にはさまざまな乗りものが存在します。航空機や船舶、自動車などですが、それらを融合させたような動く高級ホテルが海外で販売されています。
まさに「動く高級ホテル」その価値3億円!?
日本では手軽に購入出来るキャンピングカーとして、軽自動車をベースとした「軽キャンパー」が存在します。
しかし、世界には数億円かつ巨大なモバイルホーム(モーターホーム)がいくつも存在。なかでも、Marchi Mobileが展開する最高級モデルが「eleMMent palazzo Superior」(以下、スーペリア)です。

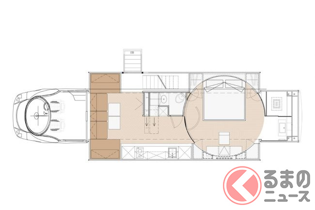
スーペリアのボディサイズは、全長13700mm×全幅2550mm(拡張時5000mm)×全高4000mm(ルーフ部分までは6000mm)、パワートレインは608馬力を発揮するボルボ製エンジンを搭載。
全体的なデザインは、スポーツカー、航空機、船舶など異なるジャンルのデザインを融合させた唯一無二の個性を放っています。
フロントは、高性能なカーボンファイバー素材を用いており、スポーツカーのようなデザインラインと36インチのリムカバーは、最新のレーシングカーの雰囲気を持っているほか、ヘリコプターのようなフロントガラスも特徴的です、
運転席には、ジェット機のコックピットにヒントを得た中央のデジタル計器を採用しています。
ボディは、優れた機能性と快適性を兼ね備えた構造となっており、60mm以上の壁厚を採用。さらに、優れた断熱性能も実現しました
ルーフ部分に配置されたスカイラウンジは、自動昇降システムによって上方向に持ち上げられます。
インテリアは、「第二の我が家」を実現するためデザインにこだわっており、リビングスペースはオーナーとゲストに最高の快適さを提供します。
最大の特徴は、4mのカウチソファーからバー、ワインキャビネット、製氷機、そして部屋の向こう側には42インチLEDモニターが見えることで、オープンキッチンは、広々とした室内の雰囲気をさらに高めています。
広々としたベッドルームには、英国王室にベッドを提供している会社が製造した世界でもっとも快適といわれるキングサイズベッドを設置。また、車内全体に空気循環システムが作動しており、快適な室内温度を確保しています。
なお、スーペリアの価格は300万ドルとなる日本円で3億円を超えることから、まさに世界でもっとも高いモバイルホームといえそうです。
Writer: くるまのニュース編集部
【クルマをもっと身近にするWEB情報メディア】
知的好奇心を満たすクルマの気になる様々な情報を紹介。新車情報・試乗記・交通マナーやトラブル・道路事情まで魅力的なカーライフを発信していきます。クルマについて「知らなかったことを知る喜び」をくるまのニュースを通じて体験してください。
















